For Sale

$1,975,000

11 ABBEY AVENUE , St. Catharines (Port Dalhousie), Ontario L2N5J5

4 Beds 4 Baths 1 Partial Bath

Remarks

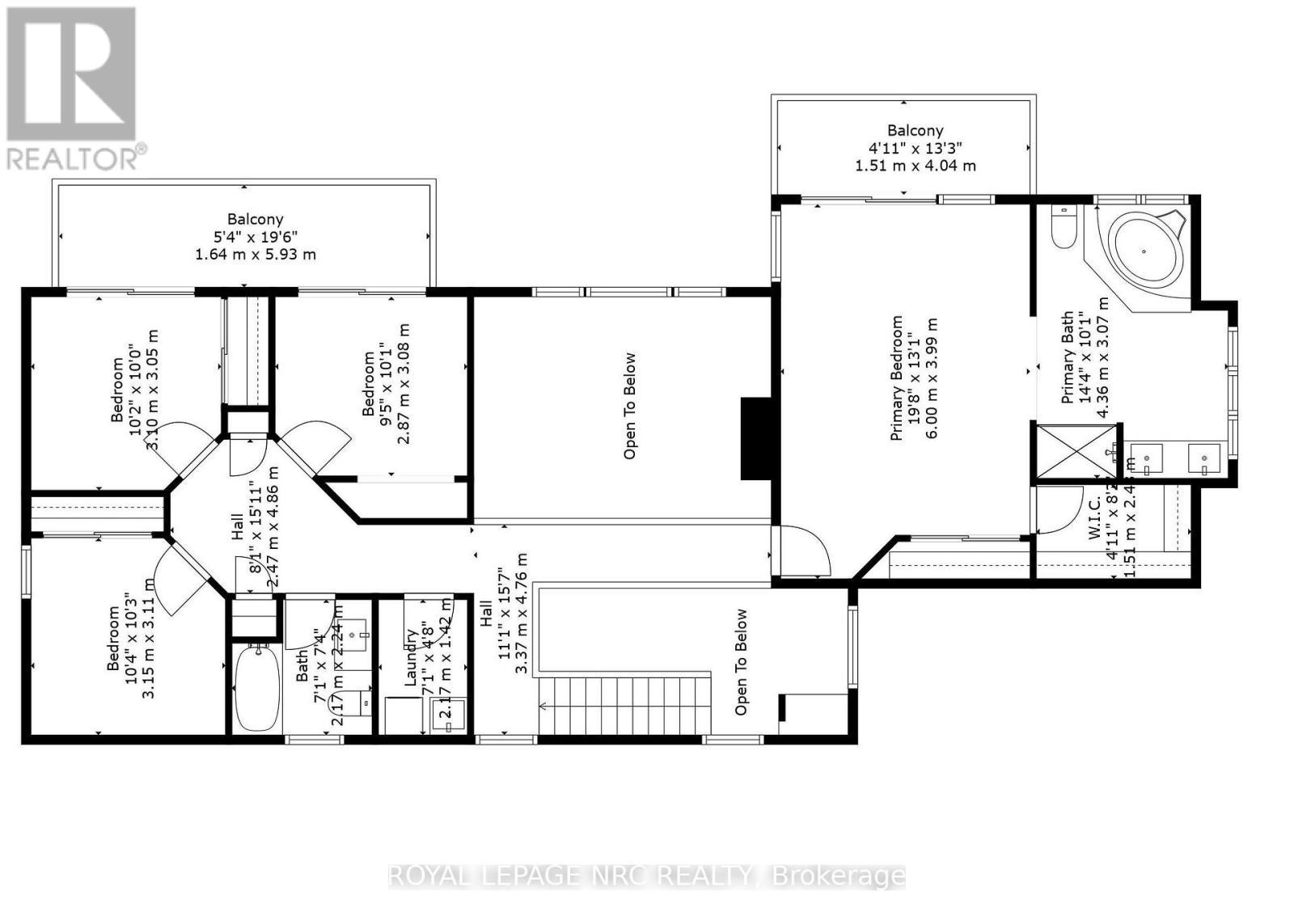
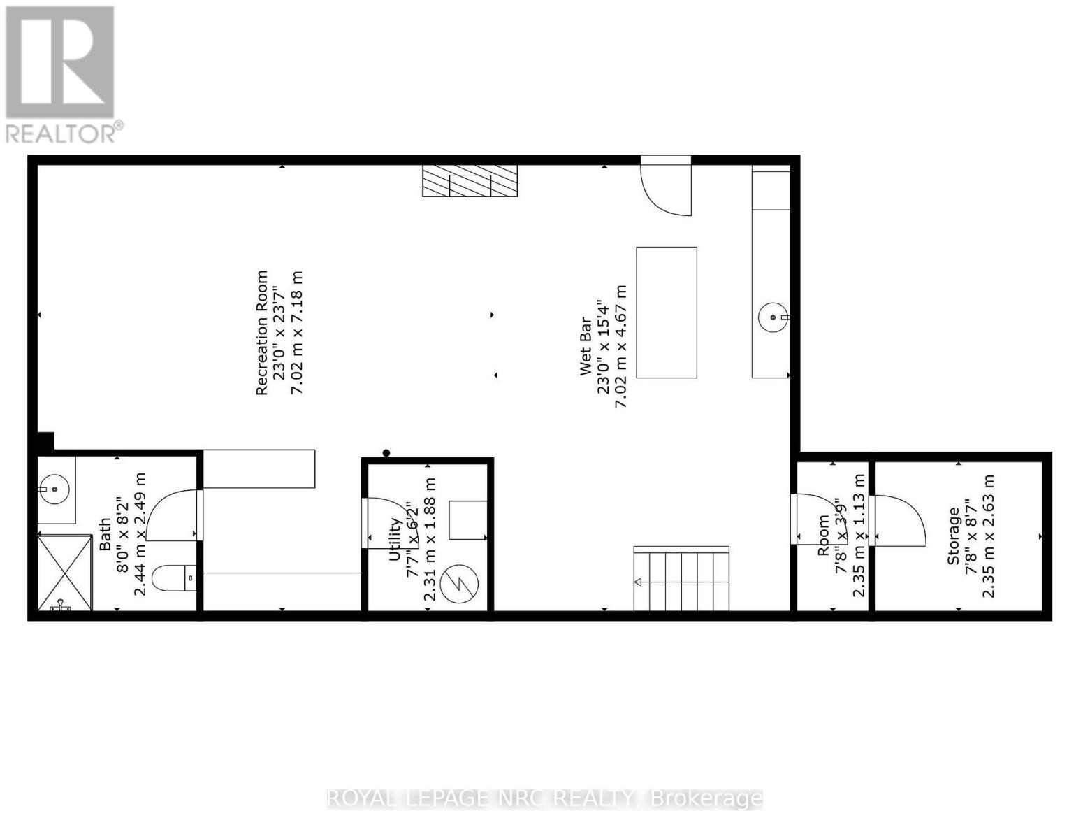
Welcome to 11 Abbey in Port Dalhousie, a rare waterfront retreat offering 80' of shoreline and 180 degree views of Lake Ontario. Built in 1995 with approx. 2,150 sf above grade plus a fully finished 900 sf walkout lower level/potential in-law suite, this custom home was designed to capture golden-hour sunsets, starlit skies, and the natural beauty of its setting. Every main living space and 3 out of 4 bedrooms enjoy breathtaking waterfront views. The main floor features 17' ceilings in the living room, a dining room with deck access, and a spacious kitchen with chef's pantry, breakfast bar and lounge area. Upstairs, enjoy views of the lake and lighthouse from the secluded primary suite with spa ensuite. 3 of 4 bedrooms open to balconies overlooking the lake. The walkout lower level is finished with a fireplace lounge area, 2 bar areas (easy conversion to full kitchen), 3-piece bath, wine cellar and direct access to the landscaped grounds. Mature trees, gardens, landscape lighting, and an outdoor fireplace create a private setting for entertaining and relaxation. A 2-car garage is fully insulated and has hot/cold water supply. Recent updates include a new furnace (2024) and roof (approx. 10 yrs). Port Dalhousie is a prestigious lakeside enclave, renowned for its sand beaches, private marinas, scenic waterfront trails, acclaimed dining, and the world-famous Henley Island rowing course. Elegant boardwalks/piers create a resort-style atmosphere, attracting discerning residents and visitors from around the globe. Minutes from Niagara's finest wineries, championship golf, and seamless highway access, Port Dalhousie stands as one of the region's most exclusive lifestyle destinations. 11 Abbey is more than a home, it's a front-row seat to Niagara's finest waterfront living. (id:27)

Property Summary

  • Neighbourhood: 438 - Port Dalhousie
  • Lot Frontage: 60.2 Feet
  • Lot Depth: 80.3 Feet
  • Lot Size: 60.2 x 80.4 FT
  • No. of Parking Spaces: 4
  • Floor Space (approx): 2000 - 2500 Square Feet
  • Waterfront: Yes
  • Water Body Type: Lake Ontario
  • Water Body Name: Lake Ontario
  • Bedrooms: 4
  • Bathrooms (Total): 4
  • Bathrooms (Partial): 1
  • Zoning: R2

Property Features:

  • Access Type:
    []
  • Amenities Nearby:
    [] , Golf Nearby , Hospital , Marina
  • Equipment Type:
    Water Heater , []
  • Features:
    Lighting , []
  • Landscape Features:
    Landscaped
  • Ownership Type:
    Freehold
  • Parking Type:
    Attached garage , Garage
  • Property Type:
    Single Family
  • Rental Equipment Type:
    Water Heater , []
  • Sewer:
    Sanitary sewer
  • Structure Type:
    Deck , Porch
  • Surface Water:
    []
  • View Type:
    View of water , []
  • WaterFront Type:
    Waterfront on lake

Building Features:

  • Amenities:
    []
  • Appliances:
    Central Vacuum , Water meter , Dishwasher , Dryer , Garage door opener , Microwave , Stove , Washer , Window Coverings , Refrigerator
  • Basement Development:
    Finished
  • Basement Type:
    N/A , N/A
  • Building Type:
    House
  • Construction Style - Attachment:
    Detached
  • Cooling Type:
    Central air conditioning
  • Easement:
    Unknown , Easement
  • Exterior Finish:
    Brick
  • Foundation Type:
    Poured Concrete
  • Heating Fuel:
    Natural gas
  • Heating Type:
    Forced air
Lifestyle
Neighbourhood Info
David T. Hartwell

David T. Hartwell

Broker

Phone:  905.688.4561

Mobile:  905.984.9975

logo

Royal LePage NRC Realty, Brokerage (Independently owned and operated)

33 MAYWOOD AVENUE
St. Catharines,  ON L2R1C5

Get More Info

Get More Info

Book a tour